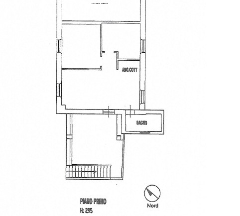
CAMPO ALL' AIA - A soli 50mt. dalla spiaggia grazioso trilocale con terrazza di 50mt con vista mare e posto auto di proprietà. L' appartamento è ubicato al primo ed ultimo piano, possiede ingresso indipendente e si trova in buone condizioni. La superficie interna è di circa 70mq. suddivisi in soggiorno con angolo cottura, camera matrimoniale, cameretta e bagno finestrato. Nessuna spesa condominiale.
Terrazzi 25 mq, Giardino condominiale
Classe G
La Domus Srl
Via Romeo Rodriguez Pereira, 166
00136 Roma

LA DOMUS SRL - via R. Rodriguez Pereira n. 166 - 00136 - 00100 Roma (RM) - Tel. 06/35403506 - 06/35403767
CAMPO ALL' AIA - A soli 50mt. dalla spiaggia grazioso trilocale con terrazza di 50mt con vista mare e posto auto di proprietà. L' appartamento è ubicato al primo ed ultimo piano, possiede ingresso indipendente e si trova in buone condizioni. La superficie interna è di circa 70mq. suddivisi in soggiorno con angolo cottura, camera matrimoniale, cameretta e bagno finestrato. Nessuna spesa condominiale.
Riferimento: E72-GMFR3340
Tipologia: Appartamento
Comune: Marciana
Zona: Campo All'aia
Cucina: Angolo cottura
Camere: 2
Bagni: 1
Box: Posto auto scoperto
Piano: 1° di 1
Anno costruzione:
Stato conservazione: Buono
Stato:
Spese cond. annue €:
Riscaldamento: Nessuno
Caratteristiche:
Terrazzi 25 mq, Giardino condominiale
Efficienza energetica
Classe G